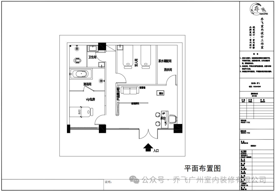
平面布局规划



🔵入口接待区:设置前台、茶台与玻璃屏风,打造通透又有仪式感的入户体验,同时划分等候与咨询区域。
🔵护理功能区:规划双人护理间、独立VIP包房,满足不同客户的私密性需求,VIP房配套独立淋浴间与卫生间,打造专属奢享体验。
🔵后勤保障区:独立茶水调配间、消杀间,严格遵循美容行业卫生标准,实现操作区与后勤区的物理分隔,保障服务合规性。
🔵动线设计:以入口为起点,护理区沿内侧排布,后勤区靠角落设置,避免客户动线与员工动线交叉,提升空间使用效率。



入户区

🔵茶台区域:设置休闲茶桌,为客户提供等候、咨询的舒适空间,搭配精致茶具,细节处彰显服务品质。
🔵产品展示区:香奈儿主题展示柜,既展示高端护肤产品,又提升门店档次,同时满足客户产品选购需求。



🔵双人护理间:两张护理床对称布局,搭配拱形发光镜、壁灯与香薰蜡烛,营造出温馨浪漫的护理氛围,适合闺蜜同行、双人护理。墙面置物架满足产品收纳需求,空间整洁有序。
🔵 独立VIP包房:专属护理床+独立卫浴,打造一对一的奢享服务空间,玻璃移门实现空间灵活分隔,兼顾私密性与通透感,墙面艺术挂画提升空间格调,满足高端客户需求。





东莞市嵘铖建设工程有限公司专业从事商务办公、教育培训、餐饮会所、娱乐健身、医院等项目设计施工,为客户提供设计、施工、家具、弱电一站式服务。施工管理团队平均从业年限10年以上,所有项目工地,均由公司直管经营,采取标准化的施工管理,严把质量关卡,按时按质按量完工且检验,高品质交付给每一位客户,客户满意,我们的追求,我们也随时欢迎参观考察。
东莞市嵘铖建设工程有限公司
东莞市工装装修设计
图文源自网络