模糊边界的办公场所
OFFICE SPACE WITH BLURRED BOUNDARIES
望京门又称朝京门、迎恩门,在古城的西门口,也是宁波重要的历史文化遗存。望京门是古代官员赴京、学子赶考、商贾北上的必经之路,见证了城市的开拓、发展和繁荣,是贯穿过去、现在与未来的一座精神桥梁。



本案委托方是一家有着近30年的历史,在宁波最早从事建筑装饰装修设计与施工的专业化的公司之一。系建设部核准的国家“一级”施工、“甲级”设计的知名装企。

△ 办公楼旧貌
时间线索 ·
项目位于宁波海曙西门口望京E座写字楼里,这座上世纪90年代建造的11层框架结构建筑,建面结构呈半圆形,建筑体中间为集中采光。典型旧式产权型办公楼。改造前的办公空间呈现年代特色,遵循原建筑区分的空间形态。各功能区布局封闭、缺乏光照和空气对流,楼层噪音相互干扰。公区顶面净层高仅为2.1米。整体环境昏暗狭小压抑,陈旧的公共设施无法满足当代办公的需求。

△ 办公楼旧貌
重塑秩序 ·
考虑到业主希望低成本高效率完成本次改造任务,JCOO团队以打开原建筑构架面和最大限度使自然光源深入到内部空间作为首要手段,对功能空间、结构形式、装饰材料进行统一整合。

△ 轴侧分析图
通过模型推演,自然光源贯穿整个动线,对整个公区进行功能重构,消除了原有空间的封闭感。在充分考虑光线的介入后,并以透明材质的玻璃围合廊区,隔绝楼层分界面,退让原建筑设定标准尺度,在单一的建筑空间中植入功能体块。

△ 办公楼廊区改造前后对比
改造既重置秩序。保持原分区功能空间,在满足建筑及消防规范的要求,且不影响其余楼层的综合管井使用的前提下,在强调空间等级的同时,打造三组多元化的综合空间。(前厅、行政前区、财务等候区)采用空间渗透的方式,尝试让廊和企业内部对内外协作活动空间创造一种新的关系。打消边界所带来的距离感,增强人与空间的融合。

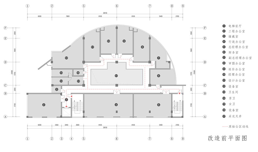
△ 改造前平面图

△ 改造后平面图
叙事衍生 ·
剥离吊顶来消除净层高带来的压迫感,暴露的旧混凝土梁显示着时间的累积。加以红砖、钢板、海洋板、脚手架装置并由此形成了新生空间叙述的语言。


△ 接待前厅


△ 电梯前厅
我们尝试运用材料符号的特质来表达企业自身的文化属性。它们延展在各个空间之间的关系,展示了现代装企与它们正在进行和完成的项目特质。让符号的元素和构成作为抽象与具象之间的对话。



走廊围绕着采光中庭。它是日夜交替中不断变化的场所。我们采用大面积玻璃来区分空间与中庭的关系,拓展悬挑的景观增加建筑与内空间视觉的连贯性,使之成为一种模糊状态下的“灰空间”,独立而互融。




建筑空间的入口与廊之间的边界消融,材质与符号的渗透成为了这种叙事方式。




综述 ·
模糊边界的这个概念缘于日语中的“aimai”,意思是“暧昧”,它被定义为一种状态,在这种状态中,有不止一个有意的含义,导致了模糊、不清晰和不确定。

本案通过消隐建筑预留的空间边界,增强办公和公共空间之间的模糊痕迹。扩大因时代演绎对各空间的尺度关系。向员工和访客展示一种创新、激发灵感的多元化工作环境和交流平台,并在细节中体现成杰企业对于行业的进取、执着、创新、和对未来的展望。


东莞市嵘铖建设工程有限公司专业从事商务办公、教育培训、餐饮会所、娱乐健身、医院等项目设计施工,为客户提供设计、施工、家具、弱电一站式服务。施工管理团队平均从业年限10年以上,所有项目工地,均由公司直管经营,采取标准化的施工管理,严把质量关卡,按时按质按量完工且检验,高品质交付给每一位客户,客户满意,我们的追求,我们也随时欢迎参观考察。
东莞市嵘铖建设工程有限公司
东莞市工装装修设计
图文源自网络