正如阿尔伯特·爱因斯坦所说:逻辑会把你从A点带到B点,想象力会带你到任何地方。
而任何一种空间的重塑也是如此,不仅要有内在的逻辑组成,更重在无限想象之下,其精神秩序的再造。



无限想象之下
再造,精神秩序
在潜阳科技办公空间的设计中,设计师充分运用多元想象,力求凝练与纯粹,将企业文化和精神符号演变成空间的意像和秩序感,让空间被赋予一种更加内敛和独特的精神指向。
秩序,是一种空间礼仪。
可以平复现实的繁复与纷杂,让人始终处于一种安定、平和的状态。而对于办公空间而言,正是需要这样的环境,给员工营造一种安定力和平和感,予人以宁静与专注。
一层空间 / 01
构筑空间的精神符号

一层区域作为整栋办公楼的形象入口,设计师匠心独运,从企业自身文化出发,将建筑的符号元素进行演变和提取,形成独特的情感符号,植入到空间的构筑当中,给人清晰明了而又耐人寻味的视觉冲击力。


接待大厅
在接待大厅的中心,设计师将空间功能和现代美学相结合,并从企业LOGO中提取色彩和线条元素,植入到空间的组成中,为整个形象入口构建了一个视觉中心点。

空间造型的序列感和色彩的渐变感,让空间拥有十足的张力和活力,方寸之间,松弛感和凝聚力相依存,尽显其独特的场域力量。

除了在空间中巧妙地植入企业的精神符号,设计师还将建筑的外立面形态延伸至室内空间,雕刻进室内的构成中。并且大笔运用低饱和度的灰与白,烘衬出空间的商务气息和现代科技感,与空间中明亮轻快的跳跃色形成对比,彰显出公司的文化历史与全新期冀。
二层空间 / 02
打造办公空间的生力场

面对现代繁复的生存与工作状态,人们更加看重来自内心的安定与纯粹,而对于办公空间而言,亦追求一种有序的简单与宁静。设计师深谙人们内心的诉求,通过巧妙的构思,意在给空间注入一股新的力量。



二层空间作为员工的职场空间,更加讲究开放性和舒适性,设计师将光线和自然氛围投射进场所中,利用低饱和的灰色作为环境基色,可以让员工时刻保持一种沉着冷静的状态,更好地投入到工作的思考中。同时在局部造型中,也和一楼的空间序列感保持呼应,作为一种精神的延伸和互动。

茶水吧
在开放的茶水吧设计当中,设计师在色彩的调和上用足了心思,一抹活力橙的运用,让整个空间显得张弛有度且充满了生气,将试管艺术装置与照明相结合,既贴合公司业务性质,又能让整个空间顿时充满了思考,显得新奇而别致,在日常的工作之中,可以有效地激发员工的想象。
三层空间 / 03
重新定义高管办公
三楼空间主要用于企业高管办公,区别于常规的空间布局设计,设计师在打造空间的特性时,始终在活跃与沉稳中找到一种平衡,从企业的精神符号出发,用适量的色韵和形态,重新定义现代科技企业的高管办公层,令人耳目一新。

高管办公室
在这个空间里,设计师通过造型,标识和色彩,让整个办公场所保持一种精神的延续。入口处菱形的蓝色化工元素装置就像一个会说话的艺术品,显得独特而艺术,而高管办公室内部,又用较为内敛的方式将色彩和造型适度融合,营造一个既活泼又沉稳的办公区域。
接待茶水吧
接待茶水吧的设计更是别出心裁,不仅大胆运用了大面积的橙黄色以及渐变的黄色与绿色;在材质的选择上也颇为精心,温润的木色和冷峻的金属波纹板相结合,顿时碰撞出独特的空间气息,既沉稳低调,又适度张扬;既安静内敛,又个性独到,给人多重感官的冲击。而在造型与细节上,又贴合空间的秩序主题,与其他楼层相呼应。

四层空间 / 04
营造别具一格的总裁会议层
四楼空间作为企业的总裁会议层,在保有其本身严肃沉着的特性之余,亦在设计师的精心刻画下,增添了些许艺术感和活力。
始终贴合企业的文化体现,将企业LOGO拆分、演变,从造型和色彩的递进上承接彼此的关系,将企业的文化和内涵深深植根于空间的每一隅,让空间拥有至高的精神秩序。
在造型和元素的延伸和设计上,设计师匠心独运,使得空间的场域精神和意念环环相扣,耐人寻味,给人以启发和思考。


而在会议室,设计师又通过色彩的调和和造型的勾勒,将空间的严谨性和情感性表达出来,让空间始终保持一种适配性和舒适感。
服务空间 / 05
不一样的员工社区空间
地下室
设计师善于站在空间之中去构思人类的活动,从而更好地利用空间,发挥其价值,就连附属的公区空间也不例外。地下室作为健身区和休闲区,为员工提供了一个有趣的社区空间, 照明的独特方式,给空间营造一种温馨而松弛的气氛,而蓝色艺术品的运用既是空间中不容忽视的亮色,又作为空间中的线索,将每个区域巧妙联系起来,成为一个整体。
而在空间的递进关系上,也根据不同的空间功能把握好造型和色彩的度,即便是小小的落客前厅,也经过精心的设计,呈现出简约而自然的空间氛围。
落客前厅
整栋办公空间,设计师采用内建筑的手法,辅以形体的裁切,合成一种空间秩序,同时巧用光与色彩,完成对空间感知的填充,进而让每一位进入次场域的人,都在悄然间感知到自己与“内在空间”的对话,这毫无疑问地建构了空间的精神礼序!
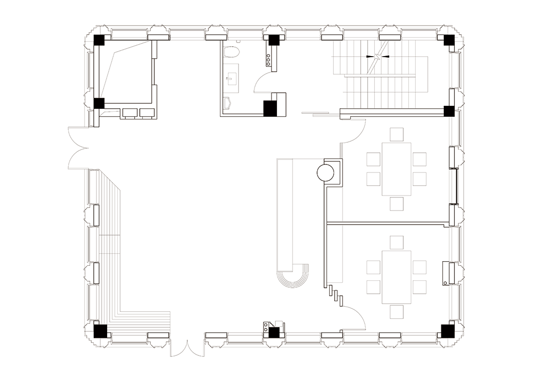
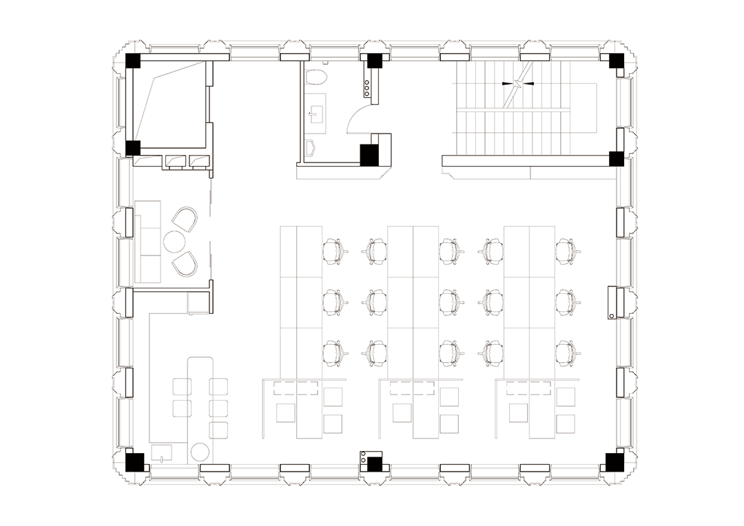
平面图
DESIGN PLAN

Δ一层平面图

Δ二层平面图
东莞市嵘铖建设工程有限公司专业从事商务办公、教育培训、餐饮会所、娱乐健身、医院等项目设计施工,为客户提供设计、施工、家具、弱电一站式服务。施工管理团队平均从业年限10年以上,所有项目工地,均由公司直管经营,采取标准化的施工管理,严把质量关卡,按时按质按量完工且检验,高品质交付给每一位客户,客户满意,我们的追求,我们也随时欢迎参观考察。
东莞市嵘铖建设工程有限公司
东莞市工装装修设计
图文源自网络