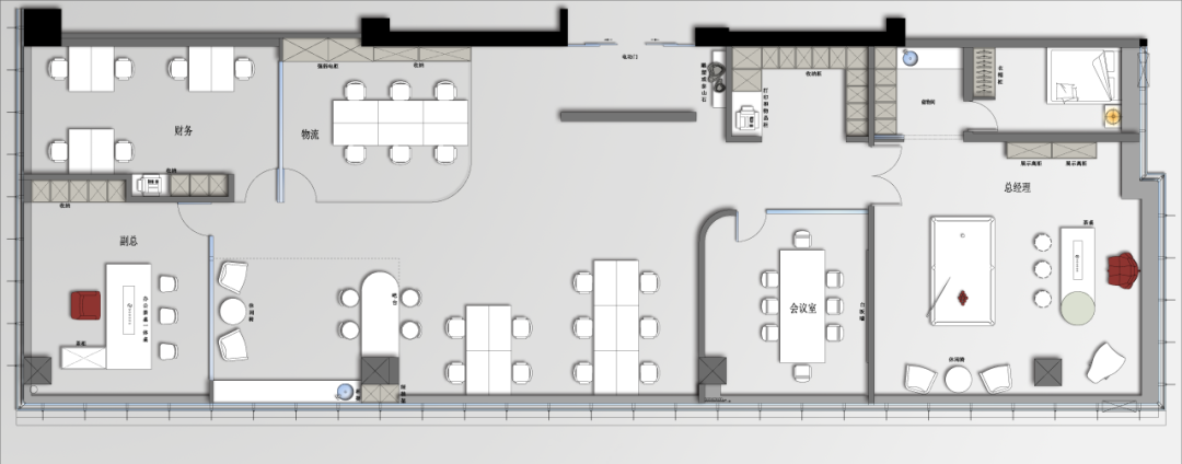
平面布置图
01.Lobby
门 厅

门厅内墙面选择不锈钢的材质,科技感增强。
放置“马到功成”摆件,
愿 鸿运当头 万事大吉。

02. Coffee bar
咖 啡 吧

考虑到员工使用中的娱乐性和舒适度;设置实用与现代简约于一体的吧台,舒适的卡座,两者配合形成完美的员工休息区。
后期如果需要增加独立办公室,在顶部预留放置隔断所需的凹槽空间,方便日后的办公室改造。
03.Administrative area
办 公 区

办公区顶部采用原始顶面,不做任何处理;
保留原始粗旷与整个精致感十足的空间形成视觉上的冲击碰撞。


扩大空间视野,办公区域的隔断选择热弯玻璃+渐变磨砂膜,既有通透性又不失隐私。
04. Reception room
接 待 室


隔墙采用玻璃隔断,在没有接待时将窗帘打开,员工在办公时可以眺望远方 放松心情 。
阳光可以照射至室内空间,舒适度大大提高。
05. Conference Room
会 议 室

会议室磁吸轨道灯+隐藏射灯,光线均匀不刺眼 ;
顶面吸音材质与地毯相配合,减少声音反射与回音;
白板下方采用磁吸式,轻轻一贴,白板擦乖乖上墙,
再也不怕失踪找不到。
06. Office
办 公 室


07. Changing area
更 衣 区

08. Director office
总 裁 办 公 室
办公室内设置独立水吧区,提高办公舒适度;
定制收纳柜,存放各类杯具物品,空间井井有条,
冰吧存放雪茄与各类茶叶酒水。

台球桌上方软膜天花代替较为笨重的无影灯,尽可能的提高层高的同时,保证下方桌面的亮度。
增加主人位茶桌区域的层高,吊顶采用“拱形”吊顶;
后方的花格装饰起到屏风作用。
考虑吸音与打球时的安全问题,墙面采用壁布硬包,提高娱乐时的安全。



END

往期作品
CASE REVIEW

△ 瀚舍设计办公室 (实景)

△ 桃李春风 复式 中古风

△ 玖峯汇 收纳美观兼而有之(实景)

△ 桃李春风 最美的留白

△ 桃李春风 黑白色的温度

△ 观山悦 顶层复式

△ 泰山院子 上叠拼

△ 观山悦 上叠复式

△ 国悦府二期 简约舒适风(实景)
东莞市嵘铖建设工程有限公司专业从事商务办公、教育培训、餐饮会所、娱乐健身、医院等项目设计施工,为客户提供设计、施工、家具、弱电一站式服务。施工管理团队平均从业年限10年以上,所有项目工地,均由公司直管经营,采取标准化的施工管理,严把质量关卡,按时按质按量完工且检验,高品质交付给每一位客户,客户满意,我们的追求,我们也随时欢迎参观考察。
东莞市嵘铖建设工程有限公司
东莞市工装装修设计
图文源自网络